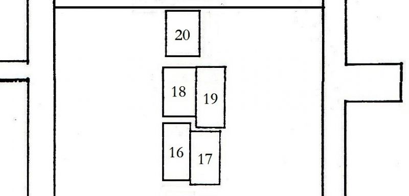
Grêven fan 16-20
Grêf: 16 opskrift:
fillius Occonis, Rispens venerablis Aggo templi curatus conditur hoc tumulo Anno 1534
vertaling: zoon (van) Occo Rispens eerbiedwaardige Aggo tempel leider (pastoor) verborgen in deze tombe anno 1534
Stambeam:
Rispens, Age Okkos (1474 -1534)
Grêf: 17 opskrift:
Anno 1655 den 29 september is in den Heere gerust de Eerbare Berber Ulbis dochter Adama de huysfrou (echtgenote) van Jan Claesfen Rispens out omtrent in 't 64 jaer en feit alhier
Anno 1663 19 junny is gerust Den Eersamen Johannis Nycola Rispens in zijn leven Kerckfocht geweest 37 jaer tot Oesterent out 78 jaer
Anno 1783 den 29 december is in den heere gerust de jonge Joannis Hindrik out 14 weeken en feit alhier begraven.
Anno 1787 den 20 april is in den Heere gerust de Eersame Hindrik Johannis in het leven kuiper tot Oosterend out 32 jaer en feit alhier begraven.
op de 10e mei 1822 is gerust Teuntje Wybes Rispens oud ruim 69 jaar huisvrouw (echtgenote) van Ynte P. Kuipers en feit alhier begraven.
Stambeam:
Adama, Berber Ulbisdr (00-11-1591 - 29-09-1655)
Rispens, Johannis Nycola (1585 - 19-06-1663)
Johannis Hendrik (00-09-1783 - 29-12-1783)
Hindrik Johannes (1755 - 20-04-1787)
Rispens, Teuntje Wybes (1753 - 10-05-1822)
Grêf: 18 opskrift:
Ao 1601 den 7 may sterf den Eersamen Idzs. Johannesz. Rispens (loannesz).
Ao 1628 10 janury is in de Heere gerust die Eerbare Deuchaame Jonkvrou Tetcke Gerbens Dr. in leven Echte Huisvrouw van Lolcke Johannes Rispens oft in't 21 jaar.
Anno 1635 den 13 april sterf den Eersamen Lolcke Joannes Rispens out 35 jaer.
Ao 1671 den 10 januaris sterf de Eerbare Sjoerdtie Jelmers de huisvrou van Johan Lolckes Rispens out 42 jaer.
Ex his cognosces anum aetatis Hic Lacet Idsardus Rispens S Liorente ivventa Qvi lachesis subiitro Xiaspiclatuva
“Van alwetende ouderdom ligt hier Idsardus Rispens de bloeiende jeugd, die roemen tot de laatste ademtocht”
Stambeam:
Rispens, Ids Johannes (1530 - 7-5-1601)
Doncker,Tetje Gerbens (1608 - 10-1-1628)
Rispens, Lolke Johannes (1600 - 13-4-1635)
Sjoerdje Jelmers (1629 - 10-1- 1671)
Graf 19 opschrift:
Ao 1615 de 2 september is gesturve die eerbare Auck Johanes Rispens huisfrow va Jacob Janz oldt 36 jaer
Ao 1645 den 20 augustus is in den heere gerust den eerbare Em. Johannes dor die vrouwe van Gerben Gerbens haer man olt int 70 iaer en leit hier onder begrave
Ao 1654 met Gerben Gerbens haer man 70 out
Ao 1668 den 31 martij is in den heere gerust Ids=ardus Rispens pharmacopola out 32 jaer
Stamboom:
Rispens, Aukje Johannes (1579 - 2-9-1615)
Rispens, Em Johannesdr. Iemkje Johannes (1575 - 20-8-1645)
Gerben Gerbens (1584 - 10-10-1654)
Rispens, Idsert (1636 - 31-3-1668) apotheker
Graf: 20 opschrift:
anno…dni (domini) …millesino quingentesimo…nono… die…alexys obiit discret (discretus) …et honestus…grodtfridus …huius eccleie curatus tuus …us me… cna h…ietnu aget
in het jaar des heren duizend vijfhonderd negen op de dag van Alexus strief (de) verstandig en eerwaardige Godfridus … van deze kerk de pastoor
Stamboom:
Attama, Goffa (voor 1455 - 17 juli 1509) Pastoor Godtfridus
Colofon
Andre Vink



